Første gang Angelicas nye kjæreste var på besøk foreslo han at de kjøpte et nytt kjøkken - og det gjorde de!
Se hva som fikk Patrik til å foreslå en IKEA-tur så kort tid inn i forholdet.
HER BOR Angelica (37), Patrik (37) og Angelicas datter Josephine (7).
HVOR I en leilighet på 110 kvadratmeter i København sentrum.
LES MER Følg paret på Instagram på @angelicadahlquist og @patriklobe.
Kjærlighet kan føre til vidunderlige ting, så hvorfor ikke til en etterlengtet kjøkkenoppussing? Det var i alle fall en av de heldige bivirkningene Angelica Dahlquist opplevde da hun møtte mannen i sitt liv. Men alt sammen startet for seks år siden da hun jaktet på en ny leilighet til seg og datteren Josephine.
Utleieleiligheten i sentrum av den danske hovedstaden var stor, lys og hyggelig, og på mange måter helt perfekt for dem – det var bare én hake ved det hele: – Kjøkkenet var en katastrofe. Det var upraktisk, mørkt og nedslitt, og på ingen måte innbydende, verken til matlaging eller kos rundt kjøkkenbordet, forteller Angelica.
Hun valgte likevel å signere leieavtalen og satset på at hun etterhvert kunne gjøre noen forbedringer. Men siden hun bare skulle leie leiligheten var det flere begrensninger fra utleiers side, samt at hun selvsagt ikke ønsket å bruke altfor mye penger på et sted som ikke var hennes.
– Men i første omgang fikk jeg i alle fall lov til å male den brune kjøkkeninnredningen hvit. Jeg fjernet også to høyskap for å få plass til et spisebord, forteller hun.
– Det hjalp litt, men kjøkkenet ble likevel ikke et sted hvor det var koselig å være, fortsetter Angelica, som til slutt innså at hun måtte komme opp med noe mer enn bare lappeløsninger. Hun gikk så smått igang med å hente inn tilbud på budsjettvennlige kjøkkeninnredninger og håpet på at hun etter hvert ville få grønt lys hos huseieren. Til slutt kom klarsignalet til å installere et enkelt Ikea-kjøkken – men da hadde Angelica begynt å studere, og for en enslig mor var det verken tid eller penger i overflod, dermed gikk prosjektet igjen i stå.
Da han møtte henne
Det var da kjærligheten kom seilende i form av en handlekraftig mann. Og da Patrik Lobe for første gang var hjemme hos Angelica for å møte Josephine, fikk han selvsagt også se kjøkkenet.
– Jeg husker det omtrent som at han bare sa: «Kom, nå drar vi på Ikea og kjøper den innredningen. Jeg skal hjelpe deg». Og det var akkurat det jeg trengte, forteller Angelica.
– Forholdet vårt besto altså Ikea-testen selv om det var ganske ferskt – og selv om vi ikke bare skulle ha servietter og lys, men et helt kjøkken, ler Angelica som er superfornøyd med resultatet.
– Det har blitt akkurat så koselig som jeg drømte om, sier hun – og joda: Patrik har selvsagt også flyttet inn.
PÅ BILDET Angelica og datteren Josephine koser seg med både matlaging, lekselesing og kreative prosjekter i det nye kjøkken-allrommet.


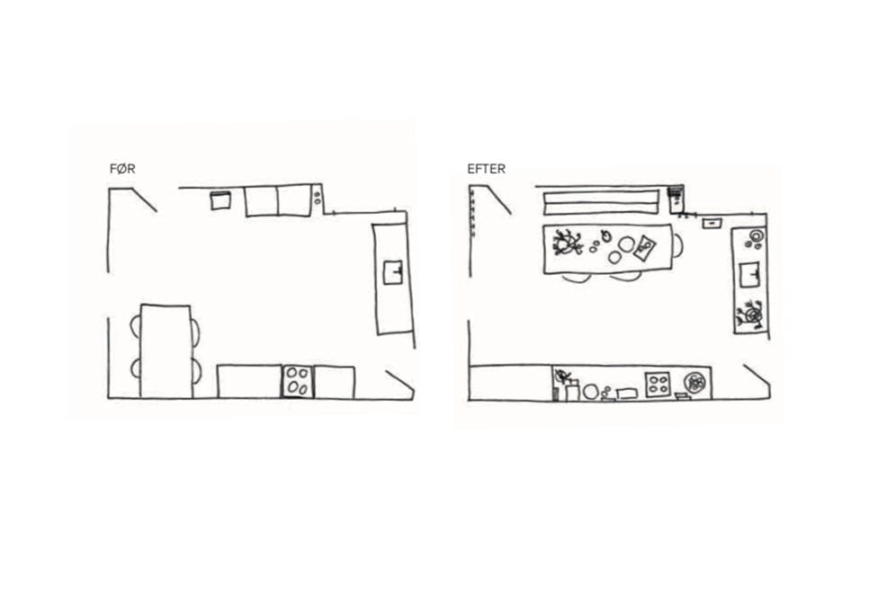
FØR
- Kjøkkenet hang dårlig sammen og plassen var ikke særlig godt utnyttet.
- Høyskapene tok mye gulvplass og overskapene hindret lyset fra rommets eneste vindu i å slippe ordentlig inn.
- Det var montert spotlys under overskapene, noe som ga kjøkkenet et kaldt lys. Rommet manglet generelt hygge og varme.
ETTER
- Kjøkkenet er nå innbydende og harmonisk, med gjennomtenkte løsninger og fine farger.
- Der hvor høyskapene og kjøleskapet sto, er det nå lagd en ny og deilig spiseplass.
- Spotlysene er byttet ut med kule, funksjonelle vegglamper.

Kjøkkeninnredningen er av det enkle slaget, men ved hjelp av grå vegger og tilbehør i fine farger blir uttrykket kult og personlig. Både innredningen, hvitevarene og vegglampeneer fra Ikea.
Veggfarge ‘Space’ fra Jotun.

En mengde tilbehør i treverk gir varme til den stramme basen. Den store bollen er fra Slettvoll og glasskålen er vintage.

PÅ BILDET Da to store høyskap ble fjernet, ble det endelig rom for en ordentlig spiseplass på kjøkkenet. Den er innredet med et bord fra Ikea, lampe fra &Tradition og en benk fra Muuto. Stolene er fra Skagerak, Muuto og Takt, mens stoffet som pynter opp veggen over benken kommer fra Stoff & Stil.
IDÈ Du kan få mye ut av lite: Sett et fint stykke stoff i ramme og heng det opp på veggen – wow!

Etter at overskapene ble fjernet strømmer lyset fritt inn i rommet. Matisse-plakaten tilfører farge og liv.

PÅ BILDET Da to store høyskap ble fjernet, ble det endelig rom for en ordentlig spiseplass på kjøkkenet. Den er innredet med et bord fra Ikea, lampe fra &Tradition og en benk fra Muuto. Stolene er fra Skagerak, Muuto og Takt, mens stoffet som pynter opp veggen over benken kommer fra Stoff & Stil.
IDÈ Sats på trerammer hvis du vil gi veggene et varmere og mykere uttrykk.

Tre tips for å gi varme på en kald base
- Velg tilbehør i feminine fargenyanser og treverk.
- Heng opp fine plakater for å gjøre rommet mer spennende og personlig. Velg gjerne rammer i naturlig treverk.
- Tilsett tekstiler i friske farger, både håndklær og kluter, puter og en liten matte eller teppe på gulvet.
PÅ BILDET Det gamle kjøkkenet ga en Angelica en inneklemt følelse, men etter at flere høyskap og overskap ble fjernet, er rommet blitt lyst og luftig.

En herlig miks av materialer og farger skaper en varm og koselig stemning ved spisebordet. Skåleneer vintage, mugge og glass er fra Anna von Lipa og putenfra Habiba.

Plakaten er fra Nynne Rosenvinge, mens knaggrekken kommer fra den danske butikken Trævarefabrikernes Udsalg.

Patrik bygde den nederste delen av de åpne rørene inn i en kasse, og dermed fikk de en fin avlastningsplass. Knaggene er fra Moebe kjøkkenhåndklene fra Ferm Living og Aiayu.




